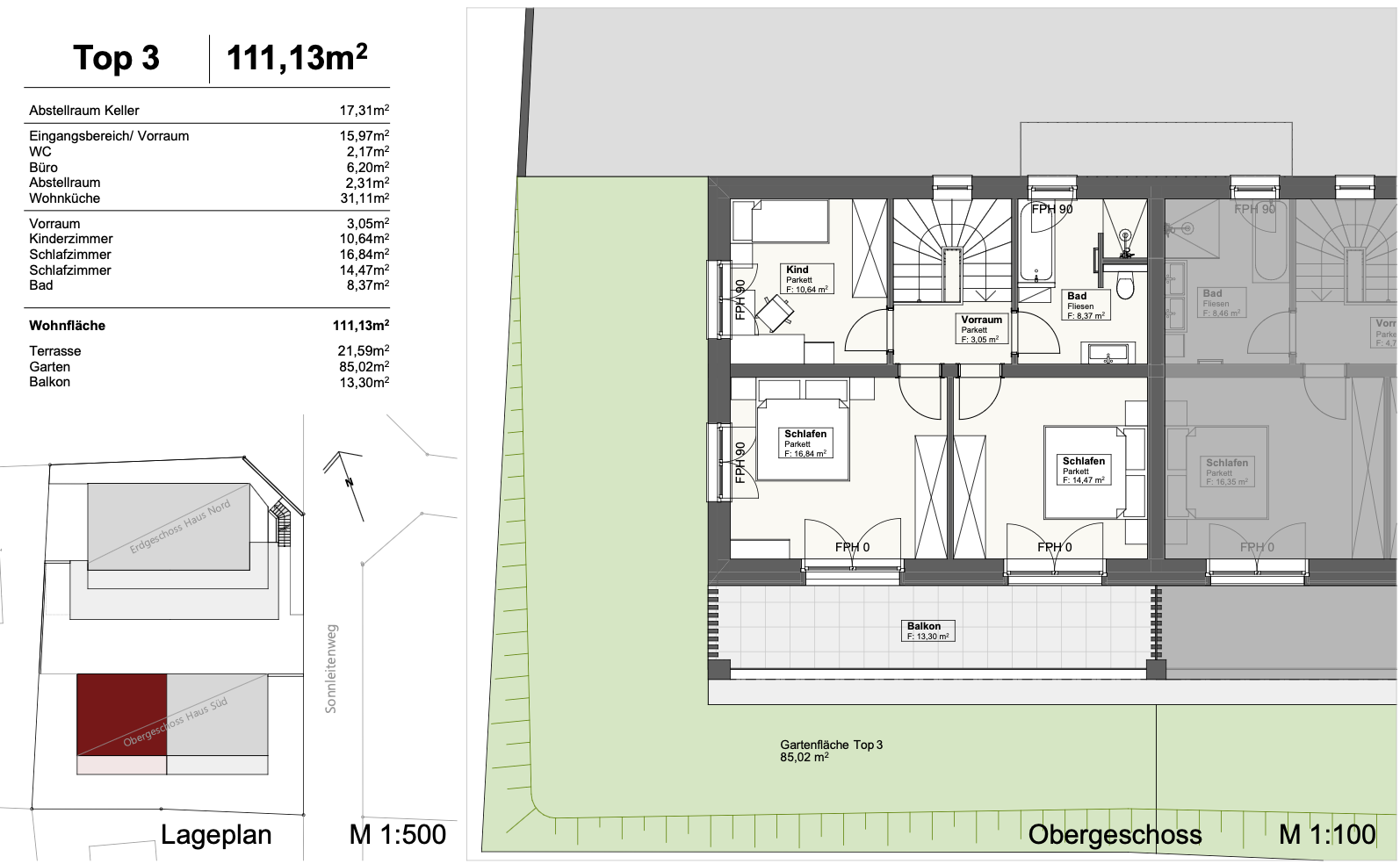
Top 3
Haus 2 – Top 3 mit 111,13 m² Wohnfläche: Wohnküche (31,11 m²), Büro, Kinderzimmer, 2 Schlafzimmer, Bad und separates WC. Dazu Terrasse (21,59 m²), Garten (85,02 m²), Balkon (13,30 m²) sowie ein Kellerabteil (17,31 m²).




Fordern Sie
jetzt Ihr Exposé an
Im Exposé erhalten Sie alle wichtigen Informationen zu Ihrer neuen Wohnmöglichkeit. Auf Wunsch vereinbaren wir gerne ein persönliches Beratungsgespräch, um Ihre individuellen Fragen zu klären.









